Estimating Softwares

Takeoff Tools

Estimating Services

 

Construction Takeoff software - ProEst

Home » Estimating Software » Construction Takeoff Software » ProEst

 

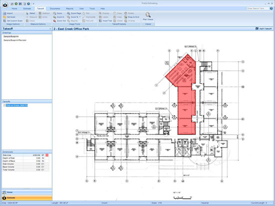
ProEst is one of the construction industry's leading cost estimating solutions. In use by more than 6,500 construction firms, ProEst allows estimators to bid quickly, accurately, and competitively. Its logical layout and familiar, easy-to-use interface are just some of the reasons why estimators of all trades prefer ProEst. Industry-specific templates and localized, updated databases give estimators flexible, yet powerful tools to complete bids quickly. Combined with ProEst takeoff for paper or electronic prints, ProEst streamlines the entire bid process, from takeoff to estimate to proposal.

By using seamless integration with other applications to increase speed and efficiency, ProEst Takeoff has set a new standard in construction estimating software. Its familiar, easy-to-use interface, and its logical layout and design make it obvious to see why ProEst Takeoff is unsurpassed in the industry.

A proven track record with thousands of clients worldwide ensures that your investment will be paid back many times over the years to come.

  • Built on Microsoft SQL technology
  • The industry's only truly integrated takeoff and estimating system, operating with a single database
  • Easily integrated with a number of leading accounting programs, including QuickBooks,  Computerease, Viewpoint, Wennsoft and JobPower.
  • Easy to learn and use with options for on-site, classroom, and online training
  • Unlimited telephone support and product updates
 

ProEst 11, the newest version of ProEst Estimating Software, is available in Lite, Standard and Professional packages. ProEst 11 provides users with standard and customizable reports; estimate templates; takeoffs for assembly, simple assembly and items; pre-built and custom formulas; the ability to automatically calculate markups, and a job costing interface.

CMiC Open Enterprise - Construction Project Management Software

CMiC Open Enterprise v10 is the most advanced and technologically open project management software ever created for the construction industry. CMiC is the leader in providing software solutions for mid to large sized general contractors/construction managers, heavy highway/civil contractors, specialty contractors and capital project owners. CMiC Open Enterprise v10 is the only application that supports the natural workflow of a project, providing all the necessary tools to manage collaboration, documents, communication and the job site. CMiC clients are some of the largest and most progressive organizations in North America, and include companies in ENR's Top 250.

Key Differentiators:
- Fully integrated with no data bridges
- Designed specifically to meet the unique business requirements of the industry
- Operates on a single, scalable database 
- Eliminates multiple data re-entry
- Increases data accuracy and timeliness
- Enhances productivity and efficiency

Contractor's Office - Construction Management Software

Contractor's Office is a complete, integrated Construction Management System that gives Construction businesses the capability to enter data only once and have it impact all the portions of your business system. Contractor's Office was designed to address he needs of custom and spec builders under 10 homes /year, remodeling contractors, general contractors, handyman and trades (painters, plumbers, roofers, etc.) companies up to 2 million in revenue.

Contractors Office includes Contact Management for communication and monitoring the customer relations process, Estimating with a broad scope of ways to make the estimating job easier and budget to actual to follow the job through to completion, Bid Management to make easy and retain complete control over the bidding process, Document Management, Accounting with complete job costing and budget to actual capabilities and Job Scheduling. There are over 700 companies using the software to make running a business easy and organized.

Construction Takeoff software - ProEst

 

Estimating Sheets

DISCLAIMER: "Autodesk, AutoCAD, Revit, Navisworks, Ecotect, QTO, DWG, 3ds Max, are registered trademarks or trademarks of Autodesk, Inc. All other brand names, product names, or trademarks belong to their respective holders. © 2010 Autodesk, Inc. All rights reserved.
HOME | SERVICES | SHEETS | CONTACT | ABOUT US | PRESS RELEASES | EVENTS | ADVERTISING

Site Design & Develop by

Global Associates

Join Our Email List